Courtier Immobilier
Situé au 3e étage, ce condo sur 2 niveaux offre 1 651 pi² d'espace lumineux et bien pensé. Le niveau principal propose une aire de vie ouverte et conviviale, mise en valeur par une cuisine entièrement rénovée au design moderne. On y retrouve également trois chambres, une salle de bains complète et une terrasse. À l'étage, la mezzanine accueille la suite principale avec sa salle de bains attenante ainsi qu'une seconde terrasse privée. Une place de stationnement réservée et un grand rangement complètent le tout. À quelques pas du métro, des parcs et des services.
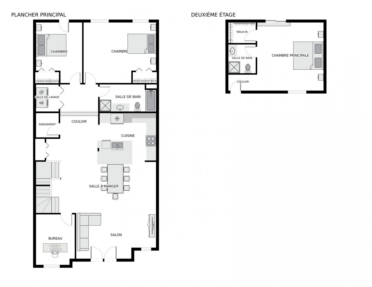
Située au 3e étage d'un immeuble de construction 2010, cette unité sur deux niveaux offre une superficie généreuse de 1 651 pi² où volume, lumière et fonctionnalité se rencontrent avec élégance.
Dès le niveau principal, l'aire de vie ouverte impressionne par sa fluidité et sa luminosité naturelle abondante. Le salon et la salle à manger s'harmonisent parfaitement avec la cuisine entièrement rénovée, au design moderne et raffiné. Lignes épurées, finitions actuelles et aménagement optimisé en font un espace aussi esthétique que convivial, idéal pour recevoir et profiter du quotidien.
Ce niveau comprend également trois chambres de belles dimensions, offrant une polyvalence recherchée pour une famille, un bureau à domicile ou des chambres d'invités. Une salle de bains complète ainsi qu'une première terrasse viennent compléter cet étage, prolongeant agréablement l'espace de vie vers l'extérieur.
À l'étage supérieur, la mezzanine accueille la suite principale dans un environnement intime et distinct. Véritable espace privé, elle bénéficie d'un walk-in, d'une salle de bains attenante et d'un accès direct à une seconde terrasse privée, parfaite pour savourer un café le matin ou relaxer en fin de journée.
L'unité comprend également une place de stationnement extérieur réservée ainsi qu'un grand espace de rangement.
Emplacement stratégique à distance de marche des stations de métro, des parcs, pistes cyclables, restaurants, cafés et de tous les services essentiels, avec un accès rapide aux grands axes routiers.
Une configuration rare dans le secteur, offrant l'espace d'une maison avec la simplicité d'un condo -- un produit distinctif qui se démarque réellement sur le marché.
LOCALISATION -- PRÈS DES SERVICES:
* Près de la rue Wellington et de ses commerces, cafés et bons restaurants.
* Proche du fleuve, 4 minutes en auto ou 15 minutes à pied de la Plage de Verdun
* À 10 minutes du marché Atwater.
* À quelques minutes du centre-ville.
* École de quartier à deux coins de rue.
* Nombreux parcs dans le secteur.
TRANSPORT - FACILE AVEC PLUSIEURS OPTIONS!
* À 6 minutes de marche du métro Verdun et de l'Église.
* À côté de plusieurs lignes d'autobus.
* À deux pas de stations BIXI, Communauto.
* Accès facile aux divers axes routiers: aut. 15, 20, 720 et 10 et le pont Champlain.
* Accès rapide au centre-ville avec plusieurs moyens de se rendre.
** Plusieurs fenêtres, porte et portes française ont été changés lors des 5 dernières années dont la majorité en 2024.
** Cuisine entièrement refaite en 2022. Nouveau comptoir en Lapitec (2022).
Inclus : Four, lave-vaisselle, sécheuse, hotte, thermopompe murale RDC, climatisation murale dans la mezzanine, coffre de rangement sur mesure dans la mezzanine, rideaux dans salon et dans la chambre des maîtres, rideaux dans le bureau et rideaux dans la chambre à coté du bureau, luminaires des chambres et luminaire du salon. Tablette dans le bureau, table de la cuisine et chaises de la cuisine. 5 chaises de bars roses sont inclus sur 7.
Exclus : Frigidaire, laveuse, rideaux dans la chambre d'enfant, tablette dans le salon (planche), tablette dans la salle à manger (étagère à 3 niveaux), luminaire de la cuisine. BBQ, mobiliers extérieurs, les effets personnels des vendeurs.
| Chambre | Dimensions | Niveau | Revêtement |
|---|---|---|---|
| Cuisine | 12.10 x 10.9 P | 3ième étage | Céramique |
| Cuisine | 12.10 x 10.9 P | 3ième étage | Céramique |
| Salle à manger | 23.8 x 11.8 P | 3ième étage | Bois |
| Salle à manger | 23.8 x 11.8 P | 3ième étage | Bois |
| Salon | 18.1 x 10.3 P | 3ième étage | Bois |
| Salon | 18.1 x 10.3 P | 3ième étage | Bois |
| Chambre à coucher | 8.9 x 11.5 P | 3ième étage | Bois |
| Chambre à coucher | 8.9 x 11.5 P | 3ième étage | Bois |
| Chambre à coucher | 10.5 x 13.9 P | 3ième étage | Bois |
| Chambre à coucher | 10.5 x 13.9 P | 3ième étage | Bois |
| Chambre à coucher | 16.5 x 13.8 P | 3ième étage | Bois |
| Chambre à coucher | 16.5 x 13.8 P | 3ième étage | Bois |
| Salle de bains | 12.9 x 6.2 P | 3ième étage | Céramique |
| Salle de bains | 12.9 x 6.2 P | 3ième étage | Céramique |
| Salle de lavage | 5.1 x 6.1 P | 3ième étage | Céramique |
| Salle de lavage | 5.1 x 6.1 P | 3ième étage | Céramique |
| Rangement | 5.2 x 5.6 P | 3ième étage | Bois |
| Rangement | 5.2 x 5.6 P | 3ième étage | Bois |
| Chambre à coucher principale | 15.0 x 15.6 P | 4ième étage | Bois |
| Chambre à coucher principale | 15.0 x 15.6 P | 4ième étage | Bois |
| Salle de bains | 6.3 x 6.6 P | 4ième étage | Céramique |
| Salle de bains | 6.3 x 6.6 P | 4ième étage | Céramique |
| Penderie (Walk-in) | 6.3 x 4.8 P | 4ième étage | Bois |
| Penderie (Walk-in) | 6.3 x 4.8 P | 4ième étage | Bois |
| Stationnement cadastré (inclus dans le prix) | Allée |
|---|---|
| Allée | Asphalte |
| Salle de bains/salle d'eau | Attenante à la chambre principale, Douche indépendante |
| Proximité | Autoroute/Voie rapide, Cegep, École primaire, École secondaire, Garderie/CPE, Golf, Hôpital, Parc-espace vert, Piste cyclable, Réseau Express Métropolitain (REM), Ski de fond, Transport en commun, Université |
| Armoires | Autre |
| Équipement disponible | Balcon privé, Climatiseur mural, Échangeur d'air, Interphone, Thermopompe murale |
| Revêtements | Brique |
| Type de fenêtre | Coulissante, Manivelle, Porte-fenêtre |
| Services disponibles | Détecteur d'incendie, Espace de rangement extérieur |
| Énergie pour le chauffage | Électricité |
| Stationnement | Extérieur |
| Toiture | Membrane élastomère |
| Système d'égouts | Municipal |
| Approvisionnement en eau | Municipalité |
| Topographie | Plat |
| Mode de chauffage | Plinthes électriques |
| Fenêtres | PVC |
| Zonage | Résidentiel |