Courtier Immobilier
La PLUS GRANDE unité du Loft Impérial -- 584 pi² dans l'un des projets les plus recherchés de Saint-Henri. Plafonds de béton de 12 pieds, fenestrations de 8 pieds et planchers refaits en 2021 : un volume impressionnant et un cachet industriel recherché. Concept ouvert lumineux avec chambre semi-fermée, idéal pour télétravail ou mode de vie urbain.Espace de rangement inclus.Immeuble bien entretenu avec rooftop, piscine et gym. Construction 2009 reconnue pour sa qualité et son insonorisation. À distance de marche du Marché Atwater, du Canal Lachine, du métro Lionel-Groulx, des cafés et restos. Opportunité d'accéder à ce projet emblématique
Au coeur de Saint-Henri, dans le réputé Loft Impérial -- anciennement les usines d'Imperial Tobacco converties en copropriétés -- cette unité se démarque immédiatement par un élément distinctif : elle offre la plus grande superficie de l'immeuble. Un avantage rare qui procure un confort supérieur et un volume recherché dans ce type de projet.
Ce bâtiment emblématique a conservé son caractère industriel d'origine, aujourd'hui très convoité. Cette unité de 584 pi² en est une parfaite expression. Les plafonds de béton d'origine de 12 pieds de hauteur créent une impression de grandeur remarquable, tandis que les grandes fenestrations de 8 pieds maximisent l'entrée de lumière naturelle et accentuent la sensation d'espace.
Le concept à aire ouverte est intelligemment configuré afin d'optimiser chaque pied carré. L'espace de vie principal est lumineux, chaleureux et polyvalent, convenant autant à un style de vie urbain actif qu'au télétravail. La chambre semi-fermée permet une séparation fonctionnelle tout en conservant l'esthétique loft recherchée. La salle de bains moderne, dotée d'une douche au design épuré, complète l'ensemble avec élégance. Les planchers ont été refaits en 2021, ajoutant une touche contemporaine appréciable.
Construction 2009 reconnue pour sa qualité et son excellente insonorisation. L'unité comprend également un espace de rangement , un atout pratique non négligeable.
Les espaces communs distinguent véritablement le Loft Impérial : chalet urbain sur le toit avec vaste terrasse aménagée, piscine extérieure, BBQ et mobilier, salle de cinéma maison, accès WI-FI, table de billard, babyfoot, foyer au gaz et cuisine d'appoint avec vue spectaculaire sur le centre-ville. Les résidents bénéficient également d'un gymnase complet, d'une salle de yoga ainsi que d'un terrain intérieur polyvalent (basketball, volleyball et badminton).
Emplacement stratégique à quelques pas du Marché Atwater, du métro Lionel-Groulx, des cafés et restaurants emblématiques du quartier, des pistes cyclables et des grands axes routiers.
Dans un immeuble chargé d'histoire où les unités distinctives suscitent un intérêt constant, cette propriété représente une opportunité particulièrement attrayante pour professionnel urbain, investisseur ou acheteur recherchant caractère, commodités et emplacement.
LOCALISATION:
* Entre les rues St-Jacques et St-Antoine
* À 5 mins à pied des parcs Saint-Henri et de la Ferme-Brodie
* À 10 mins à pied du Marché Atwater, SAQ, Super C et Pharmaprix
* À 10 mins à pied du Canal Lachine
* À 8 mins à pied des écoles Victor-Rousselot, St-Henri, École des Métiers
* À proximité du Centre universitaire de santé McGill (CUSM)
TRANSPORT:
* À 5 mins à pied du métro Lionel-Groulx et Place St-Henri
***La photo de la piscine illustrée dans la fiche provient d'une autre phase du projet. La piscine de la phase où se situe l'unité est présentement en rénovation et sa réouverture est prévue vers la fin du mois de mai.
Inclus : Tous les électroménagers (sauf congélateur). Échelle pour la mezzanine. Tous les stores. Air climatisé mural (actuellement entreposé chez l'entreprise spécialisée pour entretien complet, incluant nettoyage et recharge du gaz; l'unité sera réinstallée au printemps). La tablette au dessus du lit.
Exclus : Congélateur, porte accordéon séparant la chambre du salon, la bibliothèque, tous les effets personnels du vendeur.
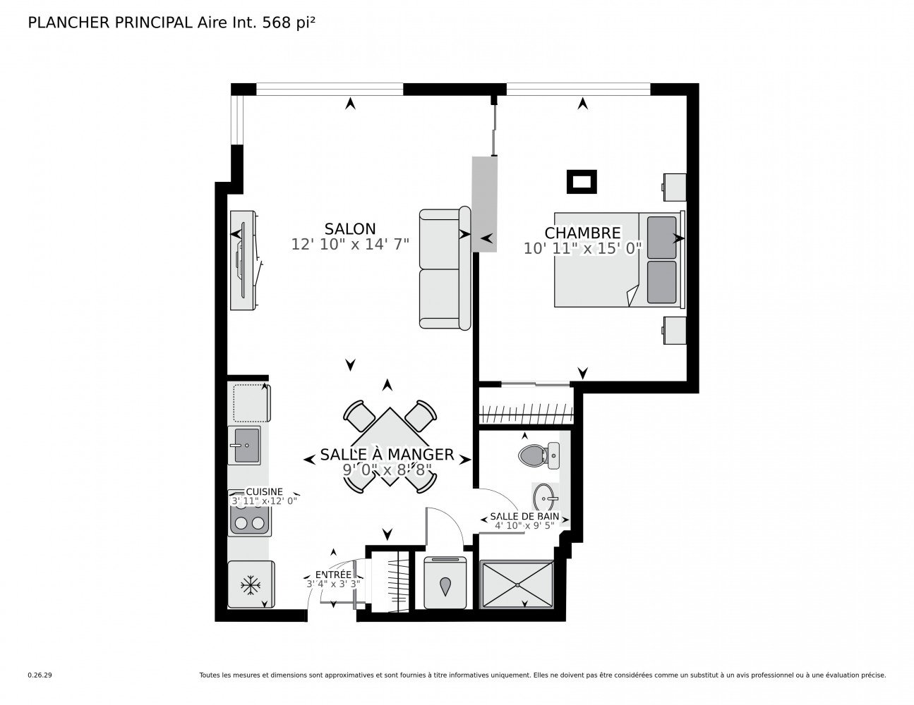
| Chambre | Dimensions | Niveau | Revêtement |
|---|---|---|---|
| Hall d'entrée | 3.4 x 3.3 P | 2ième étage | Bois |
| Hall d'entrée | 3.4 x 3.3 P | 2ième étage | Bois |
| Cuisine | 3.11 x 12.0 P | 2ième étage | Bois |
| Cuisine | 3.11 x 12.0 P | 2ième étage | Bois |
| Salle à manger | 9.0 x 8.8 P | 2ième étage | Bois |
| Salle à manger | 9.0 x 8.8 P | 2ième étage | Bois |
| Salon | 12.10 x 14.7 P | 2ième étage | Bois |
| Salon | 12.10 x 14.7 P | 2ième étage | Bois |
| Chambre à coucher | 10.11 x 15.0 P | 2ième étage | Bois |
| Chambre à coucher | 10.11 x 15.0 P | 2ième étage | Bois |
| Salle de bains | 4.10 x 9.5 P | 2ième étage | Céramique |
| Salle de bains | 4.10 x 9.5 P | 2ième étage | Céramique |
| Services disponibles | Aires communes, Détecteur d'incendie, Piscine extérieure, Salle d'exercice, Terrasse sur le toit |
|---|---|
| Fenêtres | Aluminium |
| Facilité d'accès | Ascenseur |
| Proximité | Autoroute/Voie rapide, Cegep, École primaire, École secondaire, Garderie/CPE, Hôpital, Parc-espace vert, Piste cyclable, Transport en commun, Université |
| Piscine | Autre, Chauffée, Creusée |
| Revêtements | Brique |
| Équipement disponible | Climatiseur mural, Échangeur d'air, Interphone |
| Aménagement du terrain | Clôturé, Paysager, Terrain/cour bordé de haies |
| Salle de bains/salle d'eau | Douche indépendante |
| Énergie pour le chauffage | Électricité |
| Restrictions/Permissions | Location court terme non permise |
| Type de fenêtre | Manivelle |
| Système d'égouts | Municipal |
| Approvisionnement en eau | Municipalité |
| Topographie | Plat |
| Mode de chauffage | Plinthes électriques |
| Zonage | Résidentiel |