Courtier Immobilier
2026-Mar-08 | 14:00 - 16:00
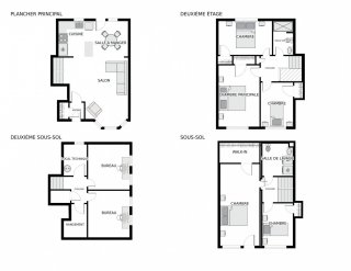
Maison à paliers multiples | MLS: 17039545
Spacieuse propriété située à Pierrefonds offrant un rez-de-chaussée lumineux avec hall fermé, vaste salon à fenestration en alcôve, salle à manger ouverte et cuisine conviviale avec îlot et accès direct à la terrasse. À l'étage, trois chambres confortables et salle de bain moderne avec grande douche vitrée. Deux niveaux de sous-sol aménagés proposent chambres, walk-in, bureaux et rangement. Cour arrière clôturée et intime avec remise. À proximité des services du boul. Saint-Jean, des écoles, parcs et de la gare Gare Roxboro--Pierrefonds.
LA PROPRIÉTÉ :
* Rez-de-chaussée lumineux avec hall fermé et garde-robes double.
* Vaste salon avec fenestration en alcôve ouvert sur la salle à manger, planchers de bois.
* Cuisine en céramique avec îlot central, coin repas et accès direct à la terrasse.
* À l'étage : trois chambres avec garde-robes et salle de bain complète avec grande douche en céramique.
* Sous-sol aménagé sur deux niveaux : deux chambres supplémentaires dont une avec walk-in, salle d'eau avec buanderie, deux bureaux, salle mécanique et rangement.
L'EXTÉRIEUR -- ESPACES APPRÉCIÉS :
* Cour arrière entièrement clôturée offrant intimité.
* Terrasse idéale pour recevoir.
* Remise pratique et bel espace pour les activités familiales.
LOCALISATION -- PRÈS DES SERVICES :
* Située à Pierrefonds, secteur familial et paisible.
* À proximité du boulevard Saint-Jean et du boulevard Pierrefonds (épiceries, pharmacies, cafés, restaurants).
* Près de la Bibliothèque de Pierrefonds, piscines, parcs et installations sportives.
* Accès rapide aux commerces majeurs tels que CF Fairview Pointe-Claire, Walmart et Costco.
* Plusieurs écoles primaires et secondaires à courte distance, dont Murielle-Dumont, Terry Fox et des Sources etc.
TRANSPORT -- FACILE AVEC PLUSIEURS OPTIONS !
* Ligne d'autobus à proximité : 205
* À quelques minutes de la gare Gare Roxboro--Pierrefonds.
* Accès rapide à l'autoroute 40 et au métro Côte-Vertu.
* Déplacements simplifiés vers le centre-ville et l'Ouest-de-l'Île.
** Prendre note que la Fondation ne paye pas de taxe scolaire et bénéficie aussi d'un rabais sur le compte de taxes municipales de la ville de Pierrefonds-Roxboro.
Inclus : Hotte cuisinière, fixtures et luminaires.
| Chambre | Dimensions | Niveau | Revêtement |
|---|---|---|---|
| Salon | 19.0 x 17.0 P | Rez-de-chaussée | Bois |
| Cuisine | 9.3 x 9.2 P | Rez-de-chaussée | Céramique |
| Salle à manger | 9.0 x 8.0 P | Rez-de-chaussée | Céramique |
| Chambre à coucher principale | 15.0 x 10.0 P | 2ième étage | Bois |
| Chambre à coucher | 11.0 x 8.0 P | 2ième étage | Bois |
| Chambre à coucher | 13.7 x 8.8 P | 2ième étage | Bois |
| Salle de bains | 8.7 x 4.1 P | 2ième étage | Céramique |
| Salle familiale | 21.0 x 9.8 P | RJ | Plancher flottant |
| Chambre à coucher | 10.10 x 7.10 P | RJ | Plancher flottant |
| Salle de lavage | 8.4 x 7.10 P | RJ | Céramique |
| Chambre à coucher | 11.4 x 11.7 P | Sous-sol | Plancher flottant |
| Chambre à coucher | 11.9 x 10.6 P | Sous-sol | Plancher flottant |
| Autre | 8.1 x 5.7 P | Sous-sol | Béton |
| Sous-sol | 6 pieds et plus, Entrée indépendante, Totalement aménagé |
|---|---|
| Mode de chauffage | Air soufflé, Plinthes électriques |
| Allée | Asphalte, Double largeur ou plus |
| Proximité | Autoroute/Voie rapide, Cegep, École primaire, École secondaire, Garderie/CPE, Golf, Hôpital, Parc-espace vert, Piste cyclable, Réseau Express Métropolitain (REM), Transport en commun |
| Toiture | Bardeaux d'asphalte |
| Fondation | Béton coulé |
| Revêtements | Brique |
| Aménagement du terrain | Clôturé, Paysager |
| Type de fenêtre | Coulissante, Manivelle, Oscillo-battant, Porte-fenêtre |
| Salle de bains/salle d'eau | Douche indépendante |
| Énergie pour le chauffage | Électricité |
| Stationnement | Extérieur |
| Système d'égouts | Municipal |
| Approvisionnement en eau | Municipalité |
| Topographie | Plat |
| Fenêtres | PVC |
| Zonage | Résidentiel |