Courtier Immobilier
Montréal (Verdun/Île-des-Soeurs) H4H1Y1
Maison à étages | MLS: 17231393
Découvrez cette propriété de prestige aux cachets verdunois uniques, située sur une magnifique rue, l'une des plus recherchées du quartier. Alliant charme et confort moderne, cette demeure spacieuse est idéale pour une grande famille en quête d'espace, de luminosité et de tranquillité, tout en profitant de la vie urbaine dynamique de Verdun. La maison offre plus de quatre chambres, une salle de bain complète et deux salles d'eau, répondant parfaitement aux besoins d'une vie familiale active.
Dès l'entrée, on découvre des espaces de vie chaleureux et lumineux, mis en valeur par une fenestration abondante, des planchers de bois et une disposition fluide. Le salon, avec son foyer au propane et son mur décoratif en pierre, crée une atmosphère conviviale. La salle à manger spacieuse et la cuisine fonctionnelle complètent le rez-de-chaussée.
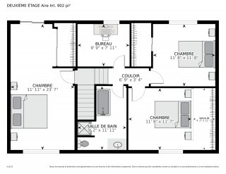
À l'étage, la chambre principale située au-dessus du garage offre intimité, avec walk-in et balcon privé. Les chambres secondaires ainsi que le bureau répondent aux besoins d'une vie familiale ou du télétravail.
Le sous-sol aménagé propose un espace polyvalent comprenant salle familiale, salle d'entraînement, salle d'eau et rangements.
À l'extérieur, la cour arrière aménagée avec piscine creusée, entourée d'un mur de cèdre, constitue un véritable havre de paix. Garage double tandem et espaces de stationnement complètent l'ensemble.
Une opportunité rare sur la rue Beatty, reconnue pour son ambiance familiale et son calme.
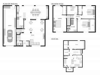
LA PROPRIÉTÉ :
Rez-de-chaussée :
- Hall d'entrée avec garde-robe double
- Salon lumineux avec foyer au propane (valeur approx. 7 000 $) et mur décoratif en pierre
- Salle à manger spacieuse avec fenestration généreuse
- Cuisine fonctionnelle avec électroménagers récents (achetés après la période Covid)
- Salle d'eau pratique
- Rez-de-chaussée fraîchement repeint en blanc, offrant un style lumineux et intemporel
Deuxième étage :
- Chambre principale au-dessus du garage offrant intimité et volume, avec walk-in et balcon
- Bureau idéal pour le télétravail
- Salle de bain avec bain et douche indépendante
- Deux chambres secondaires de bonnes dimensions, chacune avec espace de rangement
Sous-sol :
- Salle familiale polyvalente
- Salle d'exercice
- Salle d'eau
- Salle de lavage indépendante
- Plusieurs espaces de rangement
EXTÉRIEUR -- ESPACES DISTINCTIFS :
- Toiture neuve (2024)
- Cour arrière intime et aménagée
- Piscine creusée entourée d'un mur de cèdre
- Drain français installé sur une section arrière
- Garage double tandem
- Allée pouvant accueillir jusqu'à 5 véhicules
Quartier :
Nichée au coeur de Verdun, l'un des quartiers les plus recherchés de Montréal, cette propriété bénéficie d'un emplacement de choix. Verdun séduit par son ambiance de petite ville, tout en étant à seulement quelques minutes du centre-ville.
Au cours des dernières années, le quartier a connu un véritable essor avec l'arrivée de nombreux restaurants et bistros branchés, le rendant encore plus attrayant. Toujours animé, il offre une multitude d'activités à ses résidents. Que ce soit pour profiter des adresses réputées de la rue Wellington ou pour faire
Inclus : Les installations permanentes de chauffage, électricité et éclairage. Plaque de cuisson, lave-vaisselle, micro-onde, frigidaire, rideaux électriques, stores, tringles.
| Chambre | Dimensions | Niveau | Revêtement |
|---|---|---|---|
| Hall d'entrée | 4.2 x 4.1 P | Rez-de-chaussée | Céramique |
| Hall d'entrée | 4.2 x 4.1 P | Rez-de-chaussée | Céramique |
| Salon | 23.6 x 22.2 P | Rez-de-chaussée | Bois |
| Salon | 23.6 x 22.2 P | Rez-de-chaussée | Bois |
| Salle à manger | 22.5 x 12.1 P | Rez-de-chaussée | Bois |
| Salle à manger | 22.5 x 12.1 P | Rez-de-chaussée | Bois |
| Cuisine | 20.5 x 6.2 P | Rez-de-chaussée | Céramique |
| Cuisine | 20.5 x 6.2 P | Rez-de-chaussée | Céramique |
| Salle d'eau | 5.0 x 4.2 P | Rez-de-chaussée | Céramique |
| Salle d'eau | 5.0 x 4.2 P | Rez-de-chaussée | Céramique |
| Chambre à coucher principale | 23.7 x 11.11 P | 2ième étage | Bois |
| Chambre à coucher principale | 23.7 x 11.11 P | 2ième étage | Bois |
| Bureau à domicile | 9.9 x 7.11 P | 2ième étage | Bois |
| Bureau à domicile | 9.9 x 7.11 P | 2ième étage | Bois |
| Chambre à coucher | 11.8 x 11.8 P | 2ième étage | Bois |
| Chambre à coucher | 11.8 x 11.8 P | 2ième étage | Bois |
| Chambre à coucher | 11.9 x 11.7 P | 2ième étage | Bois |
| Chambre à coucher | 11.9 x 11.7 P | 2ième étage | Bois |
| Penderie (Walk-in) | 11.7 x 4.2 P | 2ième étage | Bois |
| Penderie (Walk-in) | 11.7 x 4.2 P | 2ième étage | Bois |
| Salle de bains | 11.11 x 9.2 P | 2ième étage | Céramique |
| Salle de bains | 11.11 x 9.2 P | 2ième étage | Céramique |
| Salle familiale | 24.10 x 16.0 P | Sous-sol | Bois |
| Salle familiale | 24.10 x 16.0 P | Sous-sol | Bois |
| Salle de lavage | 17.2 x 7.0 P | Sous-sol | Plancher flottant |
| Salle de lavage | 17.2 x 7.0 P | Sous-sol | Plancher flottant |
| Salle de jeux | 21.5 x 11.0 P | Sous-sol | Plancher flottant |
| Salle de jeux | 21.5 x 11.0 P | Sous-sol | Plancher flottant |
| Salle d'eau | 4.7 x 3.6 P | Sous-sol | Bois |
| Salle d'eau | 4.7 x 3.6 P | Sous-sol | Bois |
| Rangement | 11.0 x 5.5 P | Sous-sol | |
| Rangement | 11.0 x 5.5 P | Sous-sol | |
| Rangement | 7.6 x 7.4 P | Sous-sol | |
| Rangement | 7.6 x 7.4 P | Sous-sol | |
| Rangement | 8.9 x 4.7 P | Sous-sol | |
| Rangement | 8.9 x 4.7 P | Sous-sol |
| Sous-sol | 6 pieds et plus, Totalement aménagé |
|---|---|
| Allée | Asphalte, Double largeur ou plus |
| Stationnement | Au garage, Extérieur |
| Proximité | Autoroute/Voie rapide, Cegep, École primaire, École secondaire, Garderie/CPE, Hôpital, Parc-espace vert, Piste cyclable, Réseau Express Métropolitain (REM), Transport en commun |
| Fondation | Béton coulé |
| Revêtements | Brique |
| Aménagement du terrain | Clôturé, Paysager, Terrain/cour bordé de haies |
| Piscine | Creusée |
| Salle de bains/salle d'eau | Douche indépendante |
| Énergie pour le chauffage | Électricité |
| Garage | Intégré, Simple largeur, Tandem |
| Type de fenêtre | Manivelle, Oscillo-battant, Porte-fenêtre |
| Toiture | Membrane élastomère |
| Système d'égouts | Municipal |
| Approvisionnement en eau | Municipalité |
| Topographie | Plat |
| Mode de chauffage | Plinthes électriques, Radiant |
| Fenêtres | PVC |
| Zonage | Résidentiel |
| Équipement disponible | Thermopompe murale |